NMF芝公園ビルのテナント募集中区画
| 階数 | 面積 | 賃料(共益費含む) | 保証金 | 入居可能日 | 検討リスト | 詳細 |
|---|---|---|---|---|---|---|
| 7 | 67.83坪 | 2,200,000円/月(32,434円/坪) | 2,400万円 | 即 |
…新着物件
アクセス
NMF芝公園ビルの物件情報
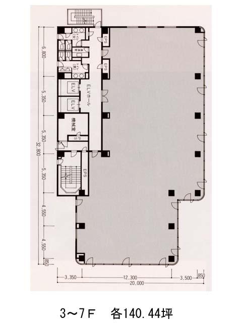
NMF芝公園ビル(港区芝)は芝公園駅(A2番出口)から徒歩1分の賃貸オフィスです。1991年竣工、地上8階地下1階建のビルです。間取りは支柱が中央に無く、レイアウトのしやすいすっきりした形状をしています。1階にコンビニが入り、普段使いとして気軽にご利用頂けるでしょう。設備仕様として、EV・非常階段2箇所・駐車場・貸室外の男女別トイレ・OAフロアがあり空調はセントラル空調システムを導入しています。外観はダークグレーの壁面と大きなガラス窓ですっきりとしており、内装は白を基調とした明るいデザインとなっております。NMF芝公園ビルは芝公園駅(A2番出口)の他に三田駅(A10番出口)徒歩6分、赤羽橋駅(赤羽橋口)徒歩8分で利用も可能です。

