7階は現在募集がありません
1フロア募集区画あり

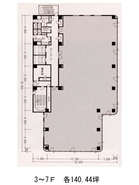
NMF芝公園ビル 7階

前の写真 次の写真

物件概要

物件番号

126-00014-80

物件名

NMF芝公園ビル

所在地

面積

140.28坪

賃料(共益費含)


入居日

募集終了

保証金

礼金

更新料

償却費

竣工

1991年5月

構造

SRC

規模

地上8階/地下1階

トイレ

男女別

空調

セントラル

エレベーター

セキュリティ

駐車場

耐震

新耐震基準

基準階天井高

2600mm

空室延床面積

67.83坪

最寄駅

情報更新日

2025/10/06

NMF芝公園ビルのテナント募集中区画

階数 面積 賃料(共益費含む) 保証金 入居可能日 検討リスト 詳細
7 67.83坪 2,200,000円/月(32,434円/坪) 2,400万円
…新着物件

アクセス

NMF芝公園ビルの物件情報

NMF芝公園ビル(港区芝)は芝公園駅(A2番出口)から徒歩1分の賃貸オフィスです。
1991年竣工、地上8階地下1階建のビルです。間取りは支柱が中央に無く、レイアウトのしやすいすっきりした形状をしています。1階にコンビニが入り、普段使いとして気軽にご利用頂けるでしょう。設備仕様として、EV・非常階段2箇所・駐車場・貸室外の男女別トイレ・OAフロアがあり空調はセントラル空調システムを導入しています。外観はダークグレーの壁面と大きなガラス窓ですっきりとしており、内装は白を基調とした明るいデザインとなっております。
NMF芝公園ビルは芝公園駅(A2番出口)の他に三田駅(A10番出口)徒歩6分、赤羽橋駅(赤羽橋口)徒歩8分で利用も可能です。

近隣のエリア・駅から探す