5階は現在募集がありません
池藤ビル 5階
物件概要
池藤ビルのテナント募集中区画
現在、空室がございません。
アクセス
池藤ビルの物件情報
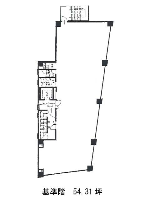
池藤ビル(港区芝)は三田駅(A9番出口)から徒歩4分の賃貸オフィスです。1981年竣工、地上10階建て、大通りに面している為、視認性の高いオフィスビルとなっております。グレーを基調とした石造りの外観に、エントランスホールやエレベーターホールは落ち着いた空間となっております。基準階は約54坪あり、室内はほぼ長方形で、余計な柱が無いため、比較的レイアウトは組みやすいでしょう。OAフロアが備えられており、トイレは男女別となっております。周辺にはコンビニや飲食店、郵便局、銀行などがある為、利便性が高いです。池藤ビルは三田駅(A9番出口)の他に芝公園駅(A1番出口)徒歩7分、田町駅(三田口)徒歩8分で利用も可能です。

