7階は現在募集がありません
KDX三田ビル 7階
物件概要
KDX三田ビルのテナント募集中区画
現在、空室がございません。
アクセス
KDX三田ビルの物件情報
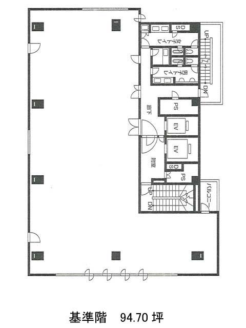
KDX三田ビル(港区芝)は赤羽橋駅(赤羽橋口)から徒歩7分の賃貸オフィスです。地上11階地下3階建、1993年竣工のビルです。桜田通り側に大きくエントランスが開かれ堂々たる風格。共用部はグレーを基調とし、落ち着いた雰囲気の内装となります。L字型の間取りは二面採光で明るい室内となるでしょう。設備仕様としてEV2基・貸室外の男女別トイレ・給湯室・個別空調・OAフロアがあり、セキュリティとして機械警備が導入されています。周辺はオフィスビル・大学・分譲マンションなど混在するエリアとなります。KDX三田ビルは赤羽橋駅(赤羽橋口)の他に三田駅(A8番出口)徒歩7分、芝公園駅(A1番出口)徒歩8分で利用も可能です。

