6階は現在募集がありません
田町ハラビル 6階
物件概要
田町ハラビルのテナント募集中区画
現在、空室がございません。
アクセス
田町ハラビルの物件情報
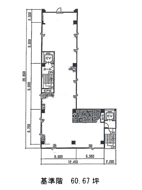
田町ハラビル(港区芝)は三田駅(A9番出口)から徒歩3分の賃貸オフィスです。デザイン性の高い細長い外観のビルです。地上9階地下1階建で、1993年竣工となります。共用部は白を基調とした明るい内装になっています。Lの字型の間取りは支柱が中央に無く、レイアウトがしやすいでしょう。EV2基・貸室内の男女別トイレ・非常階段2箇所・個別空調・OAフロアといった設備仕様で、セキュリティとして機械警備が導入されています。徒歩圏内に、ミニスーパー・コンビニ・ATM等普段使いに便利な設備があります。田町ハラビルは三田駅(A9番出口)の他に田町駅(三田口)徒歩7分、芝公園駅(A1番出口)徒歩8分で利用も可能です。

