6階は現在募集がありません
MAビル芝Ⅲ 6階
物件概要
MAビル芝Ⅲのテナント募集中区画
現在、空室がございません。
アクセス
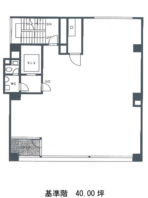
MAビル芝Ⅲの物件情報
MAビル芝Ⅲ(港区芝)は三田駅(A8番出口)から徒歩5分の賃貸オフィスです。MAビル芝Ⅲは三田駅(A8番出口)の他に田町駅(三田口)徒歩7分、赤羽橋駅(赤羽橋口)徒歩9分で利用も可能です。

