5階は現在募集がありません
SANKI芝金杉橋ビル 5階
物件概要
SANKI芝金杉橋ビルのテナント募集中区画
現在、空室がございません。
アクセス
SANKI芝金杉橋ビルの物件情報
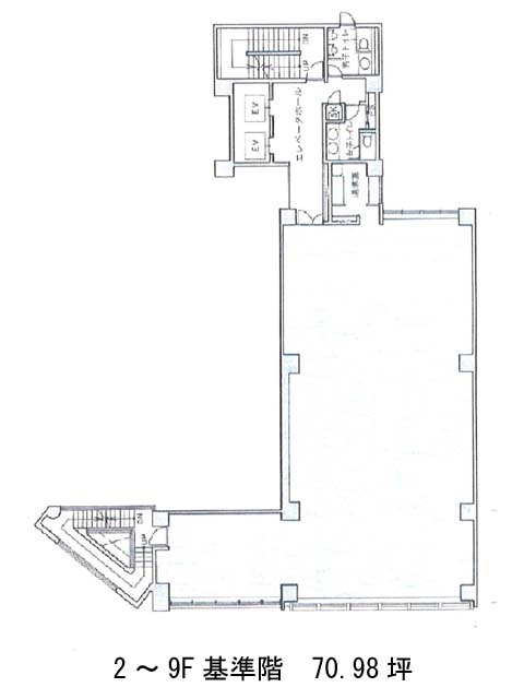
SANKI芝金杉橋ビル(港区芝)は大門駅(A1番出口)から徒歩6分の賃貸オフィスです。第一京浜沿いの角地に建ち、視認性が高いでしょう。1階にアパレルショップが入居しています。1995年竣工地上9階地下1階建で、重厚感ある外観をしています。L字型の貸室は支柱が中央に無く、オフィス家具の配置がしやすいでしょう。共用部がフロアの1箇所にまとめられています。EV・駐車場・執務室外の男女別トイレ・OAフロアといった設備仕様となります。周囲はオフィスビルが多く、徒歩圏内にはコンビニが複数ありランチにご利用頂けるでしょう。SANKI芝金杉橋ビルは大門駅(A1番出口)の他に浜松町駅(南口1)徒歩7分、芝公園駅(A1番出口)徒歩7分で利用も可能です。

