6階は現在募集がありません
1フロア募集区画あり

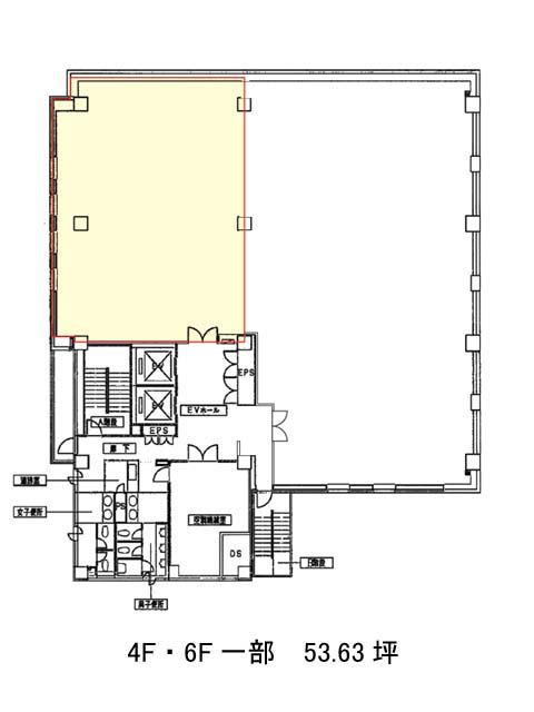
芝1丁目ビル 6階

前の写真 次の写真

物件概要

物件番号

126-00375-62

物件名

芝1丁目ビル

所在地

面積

53.63坪

賃料(共益費含)


入居日

募集終了

保証金

礼金

更新料

償却費

竣工

1992年11月

構造

SRC

規模

地上8階/地下1階

トイレ

男女別

空調

個別空調

エレベーター

セキュリティ

駐車場

耐震

新耐震基準

基準階天井高

2550mm

空室延床面積

130.02坪

最寄駅

情報更新日

2025/12/01

芝1丁目ビルのテナント募集中区画

階数 面積 賃料(共益費含む) 保証金 入居可能日 検討リスト 詳細
2 130.02坪 応相談(応相談) 応相談 2026年1月下旬
…新着物件

アクセス

芝1丁目ビルの物件情報

芝1丁目ビル(港区芝)は日の出駅(東口)から徒歩8分の賃貸オフィスです。
1992年竣工、地上8階建て、鉄骨鉄筋コンクリート造のビルです。外観は、建物自体が大きいため存在感と高級感があります。エントランスホールやエレベーターホールは広々としていて、開放感と清潔感を感じられます。基準階フロアは約150坪、ビル内にはOAフロアが備えられており、トイレは男女別、セキュリティは機械警備を導入しているため、安心です。駐車場設備も完備しております。また周辺には、コンビニや飲食店、郵便局などがあるため、利便性が高いです。
芝1丁目ビルは日の出駅(東口)の他に芝公園駅(A1番出口)徒歩9分、浜松町駅(南口1)徒歩10分で利用も可能です。

近隣のエリア・駅から探す