5階は現在募集がありません
グーゴルプレックス・ミレニアムビル 5階
物件概要
グーゴルプレックス・ミレニアムビルのテナント募集中区画
現在、空室がございません。
アクセス
グーゴルプレックス・ミレニアムビルの物件情報
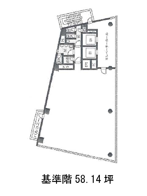
グーゴルプレックス・ミレニアムビル(港区芝)は三田駅(A9番出口)から徒歩1分の賃貸オフィスです。2008年竣工の物件ということもあり、建物自体が比較的綺麗です。外観は全体的にガラス張りになっているため、とてもスタイリッシュな印象があります。基準階は約50坪、ビル内にはOAフロアが備えられており、トイレは男女別、セキュリティは機械警備を導入しております。耐震性も新耐震基準であるため、安心です。駐車場を完備してあるため、社用車を使う場合も便利です。周辺にはコンビニや飲食店、郵便局、銀行などがある為、利便性が高いです。グーゴルプレックス・ミレニアムビルは三田駅(A9番出口)の他に田町駅(三田口)徒歩5分、芝公園駅(A1番出口)徒歩6分で利用も可能です。

