8階は現在募集がありません
芝三田森ビル 8階
物件概要
芝三田森ビルのテナント募集中区画
現在、空室がございません。
アクセス
芝三田森ビルの物件情報
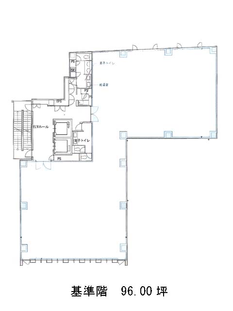
芝三田森ビル(港区芝)は三田駅(A8番出口)から徒歩5分の賃貸オフィスです。2009年竣工の物件ということもあり、建物自体が比較的綺麗です。外観は全体的にグレーを基調とした色合いで、印象的なデザインとなっております。基準階は約96坪あり、室内は募集条件によっては、2つの区画に分けて使用する事も可能です。ビル内にはOAフロアが備えられており、駐車場も完備してあるため、社用車を使う場合も便利です。また周辺にはコンビニや飲食店、郵便局などがあるため、とても利便性が高いです。芝三田森ビルは三田駅(A8番出口)の他に田町駅(三田口)徒歩8分、赤羽橋駅(赤羽橋口)徒歩9分で利用も可能です。

