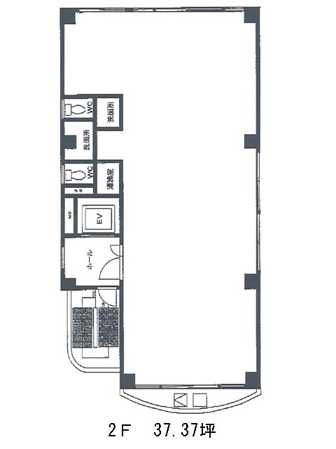
2階は現在募集がありません
芝・米山ビル 2階
物件概要
芝・米山ビルのテナント募集中区画
現在、空室がございません。
アクセス
芝・米山ビルの物件情報
芝・米山ビル(港区芝)は赤羽橋駅(赤羽橋口)から徒歩4分の賃貸オフィスです。芝・米山ビルは赤羽橋駅(赤羽橋口)の他に芝公園駅(A2番出口)徒歩6分、三田駅(A8番出口)徒歩11分で利用も可能です。

