5階は現在募集がありません
芝520ビル 5階
物件概要
芝520ビルのテナント募集中区画
現在、空室がございません。
アクセス
芝520ビルの物件情報
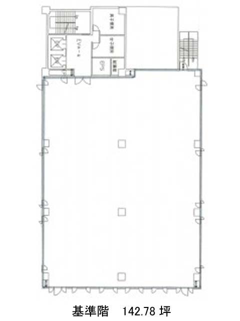
芝520ビル(港区芝)は三田駅(A7番出口)から徒歩2分の賃貸オフィスです。1994年竣工、地上7階建て、鉄骨鉄筋コンクリート造です。外観は全体的にグレーを基調とした色合いで、とてもシンプルなデザインとなっております。エントランスホールやエレベーターホールはとても清潔感があり、落ち着いた空間となっております。基準階は約140坪と広く、ビル内にはOAフロアが備えられており、トイレは男女別、セキュリティは機械警備を導入しております。耐震性は新耐震基準であるため、安心です。周辺にはコンビニや飲食店、郵便局などがあるため、利便性が高いです。芝520ビルは三田駅(A7番出口)の他に田町駅(三田口)徒歩4分、芝公園駅(A1番出口)徒歩8分で利用も可能です。

