7階は現在募集がありません
PMO田町Ⅲ 7階
物件概要
PMO田町Ⅲのテナント募集中区画
現在、空室がございません。
アクセス
PMO田町Ⅲの物件情報
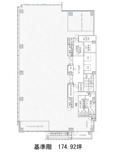
PMO田町Ⅲ(港区芝)は三田駅(A9番出口)から徒歩3分の賃貸オフィスです。2022年竣工の物件ということもあり、貸室内、設備ともに申し分ないつくりとなっております。外観は全体的に重厚感のある色合いで、全面ガラス張りになっているため、スタイリッシュな印象があります。基準階は約174坪あり、長方形の整形オフィスのため、効率の良いレイアウトが組めそうです。OAフロアが備えられており、トイレは男女別となっております。また周辺にはコンビニが複数あるため、ランチ時も便利でしょう。PMO田町Ⅲは三田駅(A9番出口)の他に芝公園駅(A1番出口)徒歩4分、田町駅(三田口)徒歩8分で利用も可能です。

