2階は現在募集がありません

三田鈴木ビル 2階

前の写真 次の写真

物件概要

物件番号

126-00006-86

物件名

三田鈴木ビル

所在地

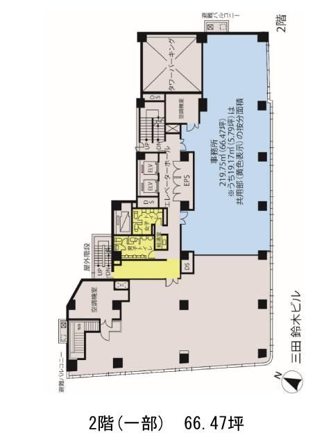
面積

66.47坪

賃料(共益費含)


入居日

募集終了

保証金

礼金

更新料

償却費

竣工

1988年5月

構造

SRC

規模

地上9階

トイレ

男女別

空調

個別空調

エレベーター

セキュリティ

駐車場

耐震

新耐震基準

基準階天井高

空室延床面積

最寄駅

情報更新日

2025/06/09

三田鈴木ビルのテナント募集中区画

現在、空室がございません。

アクセス

三田鈴木ビルの物件情報

三田鈴木ビル(港区芝)は三田駅(A3番出口)から徒歩2分の賃貸オフィスです。
1988年竣工、9階建て、角地のため、視認性が高いビルとなっております。外観は全体的にグレーを基調とした色合いで、ライン状に並んだガラスウォールが美しい建物です。エントランスホールやエレベーターホールは清潔感があり、落ち着いた空間となっております。基準階は約120坪。ビル内にはOAフロアが備えられており、トイレは男女別となっております。駐車場が完備してあるため、車の利用もしやすい環境となっております。また周辺にはコンビニや飲食店、郵便局などがあり、利便性が高いです。
三田鈴木ビルは三田駅(A3番出口)の他に田町駅(三田口)徒歩3分、芝公園駅(A1番出口)徒歩9分で利用も可能です。

近隣のエリア・駅から探す