8階は現在募集がありません
芝サンエスワカマツビル 8階
物件概要
芝サンエスワカマツビルのテナント募集中区画
現在、空室がございません。
アクセス
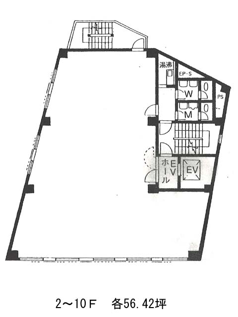
芝サンエスワカマツビルの物件情報
芝サンエスワカマツビル(港区芝)は三田駅(A9番出口)から徒歩4分の賃貸オフィスです。1986年竣工、新耐震基準を満たしています。地上10階建、白いタイルの壁面ですっきりとした外観をしています。角地に建ち、1階にコンビニが入る為ご案内時にわかりやすいでしょう。EV1基・非常階段2箇所・給湯室・貸室外の男女別トイレ・OAフロア・機械警備といった設備仕様で、空調は個別空調システムとなります。大通り側に大きな窓面があり、十分な採光がとれるでしょう。周辺にコンビニ・飲食店・ミニスーパーがあり昼食時便利にご利用頂けるでしょう。芝サンエスワカマツビルは三田駅(A9番出口)の他に芝公園駅(A1番出口)徒歩8分、田町駅(三田口)徒歩9分で利用も可能です。

