3階は現在募集がありません
芝桝田ビル 3階
物件概要
芝桝田ビルのテナント募集中区画
現在、空室がございません。
アクセス
芝桝田ビルの物件情報
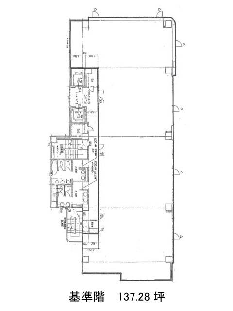
芝桝田ビル(港区芝)は三田駅(A9番出口)から徒歩8分の賃貸オフィスです。1994年竣工、地上7階地下1階建のビルです。角地に建ち、視認性が高いでしょう。外観はグレーで落ち着いた印象、内装はモノトーンですっきりとまとめられています。EV2基・機械式駐車場・貸室外の男女別トイレ・非常階段2箇所があり、空調は個別空調システムとなります。間取りは長方形で支柱が真ん中に無い為、レイアウトがしやすいでしょう。共用部がフロアの一部分に集中しております。大きなガラス窓の二面採光で十分な明るさが入るでしょう。芝桝田ビルは三田駅(A9番出口)の他に芝公園駅(A1番出口)徒歩9分、日の出駅(東口)徒歩9分で利用も可能です。

