3階は現在募集がありません
芝マツラビル 3階
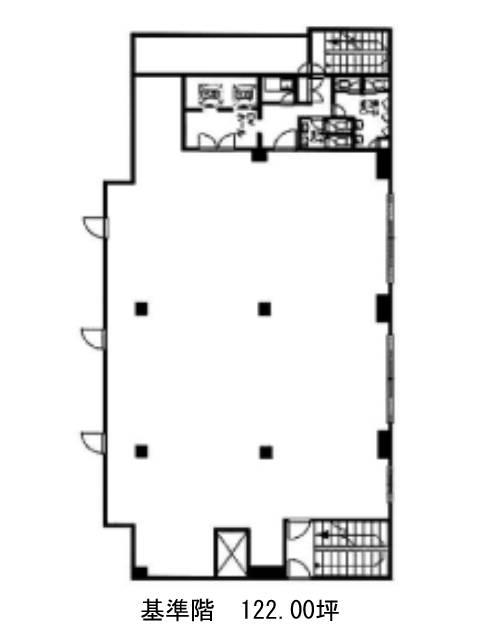
物件概要
芝マツラビルのテナント募集中区画
現在、空室がございません。
アクセス
芝マツラビルの物件情報
芝マツラビル(港区芝)は日の出駅(東口)から徒歩8分の賃貸オフィスです。第一京浜から少し入った場所に建ち、喧噪から離れ落ち着いた雰囲気のエリアとなります。1988年竣工で新耐震基準を満たしています。地上7階建で、オフィスエントランスの他に和風の出入口があり目印となるでしょう。エントランスまわりには植栽が多く植えられています。EV・駐車場・非常階段2箇所・機械警備・男女別トイレがあり空調は個別空調システムを導入しています。床はOA機器の配線を格納できるOAフロアとなります。芝マツラビルは日の出駅(東口)の他に浜松町駅(南口1)徒歩9分、芝公園駅(A1番出口)徒歩9分で利用も可能です。

