3階は現在募集がありません
Daiwa芝浦ビル 3階
物件概要
Daiwa芝浦ビルのテナント募集中区画
現在、空室がございません。
アクセス
Daiwa芝浦ビルの物件情報
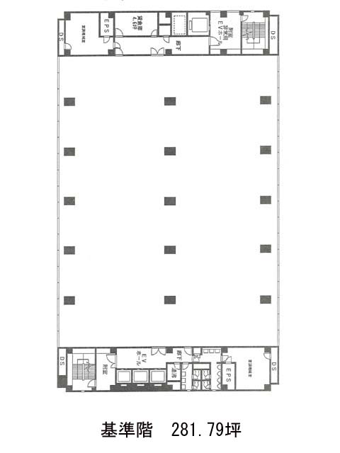
Daiwa芝浦ビル(港区芝浦)は日の出駅(東口)から徒歩10分の賃貸オフィスです。1987年竣工、地上12階建ての物件ということもあり、上層階からの眺望は良好です。外観は全体的に明るい色を基調としたタイル張りで、建物自体が大きいため存在感があります。エントランスホールやエレベーターホールは広々としていて、開放感と清潔感を感じられます。基準階は約280坪、ビル内にはOAフロアが備えられており、トイレは男女別となっております。また周辺にはコンビニや飲食店などがあるため、ランチも楽しめるでしょう。Daiwa芝浦ビルは日の出駅(東口)の他に田町駅(芝浦口)徒歩10分、三田駅(A9番出口)徒歩10分で利用も可能です。

