4階は現在募集がありません
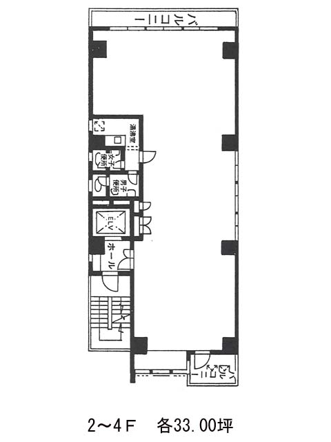
保坂興産ビル 4階
物件概要
保坂興産ビルのテナント募集中区画
現在、空室がございません。
アクセス
保坂興産ビルの物件情報
保坂興産ビル(港区芝浦)は田町駅(芝浦口)から徒歩7分の賃貸オフィスです。保坂興産ビルは田町駅(芝浦口)の他に三田駅(A5番出口)徒歩10分、芝浦ふ頭駅(西口)徒歩12分で利用も可能です。

