14階は現在募集がありません
芝浦ルネサイトタワー 14階
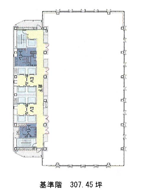
物件概要
芝浦ルネサイトタワーのテナント募集中区画
現在、空室がございません。
アクセス
芝浦ルネサイトタワーの物件情報
芝浦ルネサイトタワー(港区芝浦)は田町駅(芝浦口)から徒歩5分の賃貸オフィスです。2009年竣工、地上19階建ての物件ということもあり、上層階からの眺望は良好です。外観は全体的にシックな色合いを基調としており、建物自体が大きいため、圧倒的存在感があります。エントランスホールやエレベーターホールは広々としていて、開放感と高級感を感じられます。ビル内にはOAフロアが備えられており、トイレは男女別となっております。また周辺にはコンビニや飲食店などがあるため、ランチも楽しめるでしょう。芝浦ルネサイトタワーは田町駅(芝浦口)の他に三田駅(A4番出口)徒歩9分、芝浦ふ頭駅(西口)徒歩12分で利用も可能です。

