2階は現在募集がありません
ユニベル田町ビル 2階
物件概要
ユニベル田町ビルのテナント募集中区画
現在、空室がございません。
アクセス
ユニベル田町ビルの物件情報
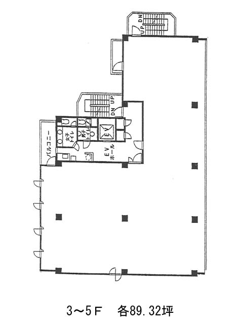
ユニベル田町ビル(港区芝浦)は田町駅(芝浦口)から徒歩7分の賃貸オフィスです。1989年竣工、新耐震基準に適合した地上8階建のビルです。白いタイル貼の壁面と、前面道路側一面の窓ですっきりとした外観をしています。共用部も白を基調とした明るい内装になっております。EV・駐車場・非常階段2箇所・バルコニー・個別空調・男女別トイレ・OAフロアといった設備仕様をしています。機械警備を導入し、オフィスは24時間使用可能です。間取りはL字型で、オフィス家具のレイアウトがしやすいでしょう。ユニベル田町ビルは田町駅(芝浦口)の他に芝浦ふ頭駅(西口)徒歩10分、三田駅(A5番出口)徒歩11分で利用も可能です。

