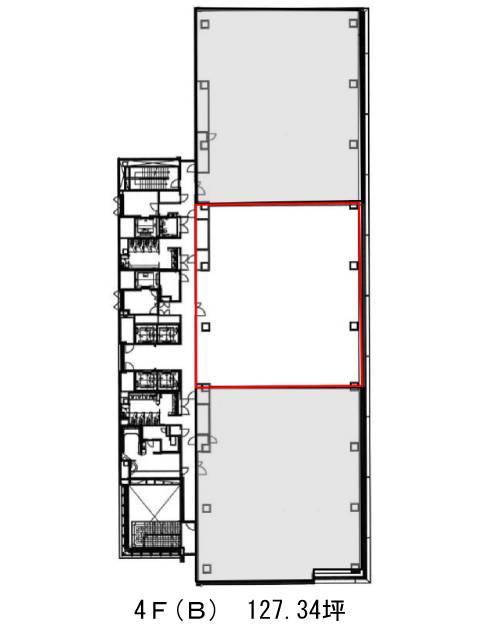
4階 4Bは現在募集がありません
オアーゼ芝浦MJビル 4階 4B
物件概要
オアーゼ芝浦MJビルのテナント募集中区画
現在、空室がございません。
アクセス
オアーゼ芝浦MJビルの物件情報
オアーゼ芝浦MJビル(港区芝浦)は田町駅(芝浦口)から徒歩8分の賃貸オフィスです。2014年竣工、地上7階建の築浅ビルです。横長の長方形をしており、前面道路側にミラーガラスが並びシャープな外観をしております。間取りは長方形の無柱空間で、レイアウトがしやすいでしょう。EV・駐車場・貸室外の男女別トイレ・OAフロア・機械警備といった充実の設備仕様です。天井高2700㎜で開放感があるでしょう。周辺は、オフィスビルや分譲マンションが建つエリアです。徒歩圏内にコンビニが複数あり、ランチにご利用頂けるでしょう。オアーゼ芝浦MJビルは田町駅(芝浦口)の他に芝浦ふ頭駅(西口)徒歩10分、三田駅(A5番出口)徒歩12分で利用も可能です。

