2階は現在募集がありません
ランドマーク芝公園 2階
物件概要
ランドマーク芝公園のテナント募集中区画
現在、空室がございません。
アクセス
ランドマーク芝公園の物件情報
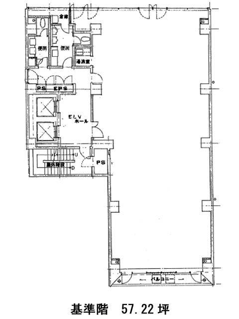
ランドマーク芝公園(港区芝公園)は御成門駅(A3a番出口)から徒歩3分の賃貸オフィスです。SRC造、地上8階建1987年竣工のビルです。新耐震基準に適合しています。EV2基・駐車場・機械警備・個別空調・バルコニー・貸室外の男女別トイレと充実の設備仕様。床下にケーブル類を格納できるOAフロアを導入しています。基準階面積は57.22坪で小規模なオフィスをお探しの方に良いでしょう。貸室は長方形の無柱空間で、レイアウトのしやすい形状をしています。近隣に芝公園や増上寺があり、都心でありながらも緑あふれる環境です。ランドマーク芝公園は御成門駅(A3a番出口)の他に大門駅(A6番出口)徒歩6分、芝公園駅(A3番出口)徒歩10分で利用も可能です。

