8階は現在募集がありません
芝公園ビル 8階
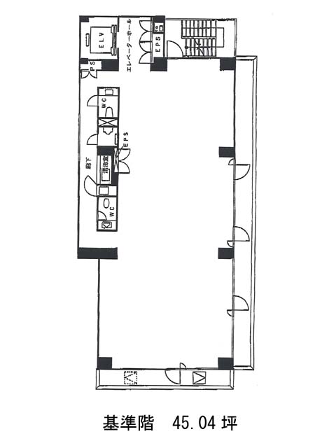
物件概要
芝公園ビルのテナント募集中区画
現在、空室がございません。
アクセス
芝公園ビルの物件情報
芝公園ビル(港区芝公園)は大門駅(A6番出口)から徒歩4分の賃貸オフィスです。芝公園ビルは大門駅(A6番出口)の他に芝公園駅(A3番出口)徒歩4分、御成門駅(A1番出口)徒歩5分で利用も可能です。

