3階は現在募集がありません
中田ビル 3階
物件概要
中田ビルのテナント募集中区画
現在、空室がございません。
アクセス
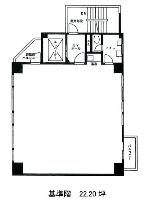
中田ビルの物件情報
中田ビル(港区芝公園)は御成門駅(A5番出口)から徒歩4分の賃貸オフィスです。中田ビルは御成門駅(A5番出口)の他に神谷町駅(3番出口)徒歩5分、虎ノ門ヒルズ駅(A1番出口)徒歩11分で利用も可能です。

