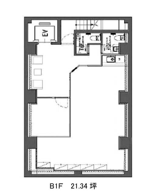
地下1階は現在募集がありません
大門OKビル 地下1階
物件概要
大門OKビルのテナント募集中区画
現在、空室がございません。
アクセス
大門OKビルの物件情報
大門OKビル(港区芝大門)は大門駅(A5番出口)から徒歩1分の賃貸オフィスです。大門OKビルは大門駅(A5番出口)の他に浜松町駅(北口)徒歩5分、モノレール浜松町駅(中央口)徒歩6分で利用も可能です。

