5階は現在募集がありません
成和大門ビル 5階
物件概要
成和大門ビルのテナント募集中区画
現在、空室がございません。
アクセス
成和大門ビルの物件情報
成和大門ビル(港区芝大門)は大門駅(A6番出口)から徒歩4分の賃貸オフィスです。地上8階建てのオフィスビル。外観は白のタイル張りで清潔感があり、ビル左側は開けているので開放感も漂っています。1階部分ではチェーンの蕎麦店が営業中ですのでランチなどに便利でしょう。
エントランス~エレベーターホールも白を基調とした上品な内装です。
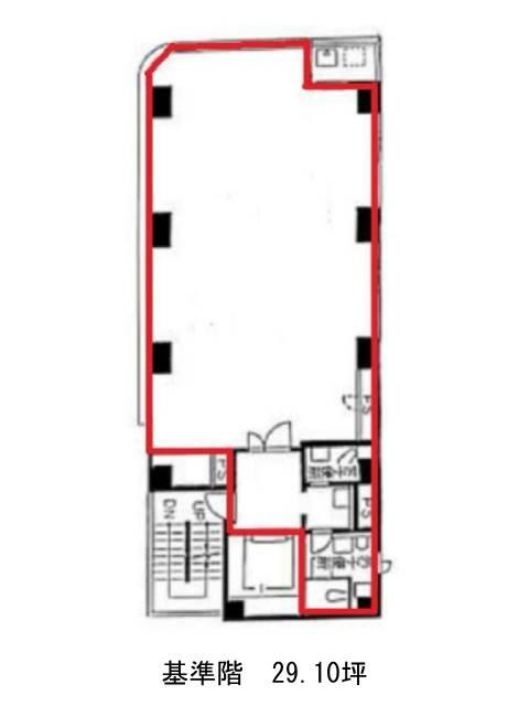
基準フロアは30坪弱。シンプルな間取りでレイアウト効率良好です。男女別トイレは室外に設置されているため、気兼ねなく使用が出来るでしょう。
大門駅方面は飲食店が建ち並ぶ環境で特にランチタイムは多くのオフィスワーカーで賑わっています。成和大門ビルは大門駅(A6番出口)の他に御成門駅(A2番出口)徒歩4分、浜松町駅(北口)徒歩8分で利用も可能です。

