6階は現在募集がありません
大門KSビル 6階
物件概要
大門KSビルのテナント募集中区画
現在、空室がございません。
アクセス
大門KSビルの物件情報
大門KSビル(港区芝大門)は御成門駅(A3a番出口)から徒歩4分の賃貸オフィスです。全面ガラス張りが美しい外観のオフィスビルです。地上8階建て。角地のため、開放感があり採光性も優れています。
吹き抜けのエントランスホールは絵画の装飾や、御影石の床に植樹が施されているなどアーティステックな雰囲気。特徴的なので訪れる方の印象に残りそうです。
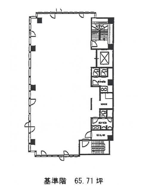
基準となるフロアは約65坪の規模。執務スペースは長方形の無柱空間+OAフロアによりレイアウトの自由度は高いでしょう。非接触ICカードによる機械警備、エレベーター不停止機能などセキュリティも強固です。
充実の設備環境で、快適なオフィスライフを送ることができそうです。大門KSビルは御成門駅(A3a番出口)の他に大門駅(A5番出口)徒歩5分、浜松町駅(北口)徒歩9分で利用も可能です。

