3階は現在募集がありません
ACN芝大門ビル 3階
物件概要
ACN芝大門ビルのテナント募集中区画
現在、空室がございません。
アクセス
ACN芝大門ビルの物件情報
ACN芝大門ビル(港区芝大門)は大門駅(A6番出口)から徒歩1分の賃貸オフィスです。芝大門のメイン通り沿い角地に立地する視認性の高いオフィスビルです。地上9階建て。1階部分にはドラッグストアの店舗テナントが入居中で何かと便利ですし、物件をアナウンスする際の目印にもなるでしょう。
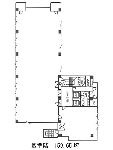
1フロアは最大約170坪の規模ですが、募集時期やフロアによって分割区画がございます。主な設備は個別空調・OA床・男女別トイレ・機械警備・機械式駐車場です。2002年にリニューアル工事済みです。ACN芝大門ビルは大門駅(A6番出口)の他に浜松町駅(北口)徒歩5分、モノレール浜松町駅(中央口)徒歩6分で利用も可能です。

