3階は現在募集がありません
羽織屋ビル 3階
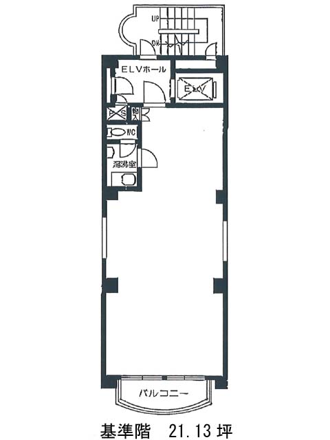
物件概要
羽織屋ビルのテナント募集中区画
現在、空室がございません。
アクセス
羽織屋ビルの物件情報
羽織屋ビル(港区芝大門)は大門駅(A6番出口)から徒歩3分の賃貸オフィスです。羽織屋ビルは大門駅(A6番出口)の他に芝公園駅(A3番出口)徒歩5分、浜松町駅(北口)徒歩7分で利用も可能です。

