2階は現在募集がありません
HF浜松町ビルディング 2階
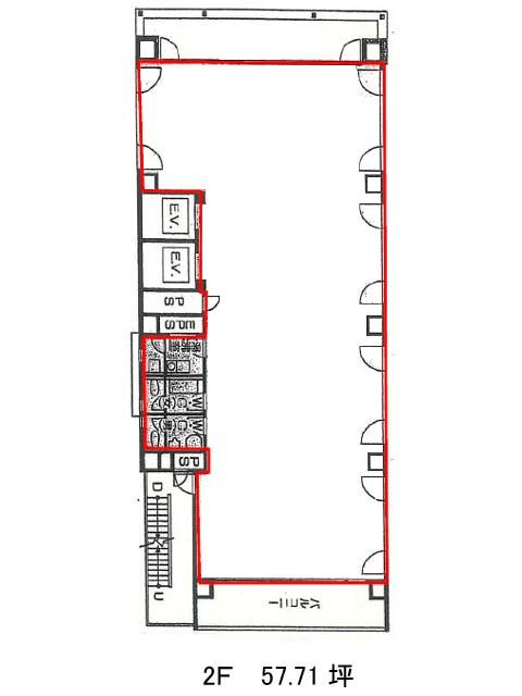
物件概要
HF浜松町ビルディングのテナント募集中区画
現在、空室がございません。
アクセス
HF浜松町ビルディングの物件情報
HF浜松町ビルディング(港区芝大門)は大門駅(A3番出口)から徒歩5分の賃貸オフィスです。ブラウンの御影石とミラーガラスで構成された外観の当ビルは、1991年竣工・地上10階建てのオフィスビル。第一京浜に面しており、前面は開放的です。エントランス~エレベーターホールは白色の石造りで清潔感があります。さりげなくお花が飾られているなど上品な雰囲気もあり、来訪者様に好印象でしょう。
基準となるフロアは約62坪の規模。執務室は長方形の無柱空間でレイアウトが行いやすく、床はフリーアクセスタイプですので、配線もすっきり収納出来ます。2基設置済みのエレベーターから室内へはダイレクトインの仕様。男女別トイレと湯沸室の水回りも全て室内に確保されています。
当ビルへは大門駅・浜松町駅からのアクセスが便利です。交通利便性も高いでしょう。HF浜松町ビルディングは大門駅(A3番出口)の他に浜松町駅(南口1)徒歩6分、芝公園駅(A3番出口)徒歩6分で利用も可能です。

