3階は現在募集がありません
SGビル 3階
物件概要
SGビルのテナント募集中区画
現在、空室がございません。
アクセス
SGビルの物件情報
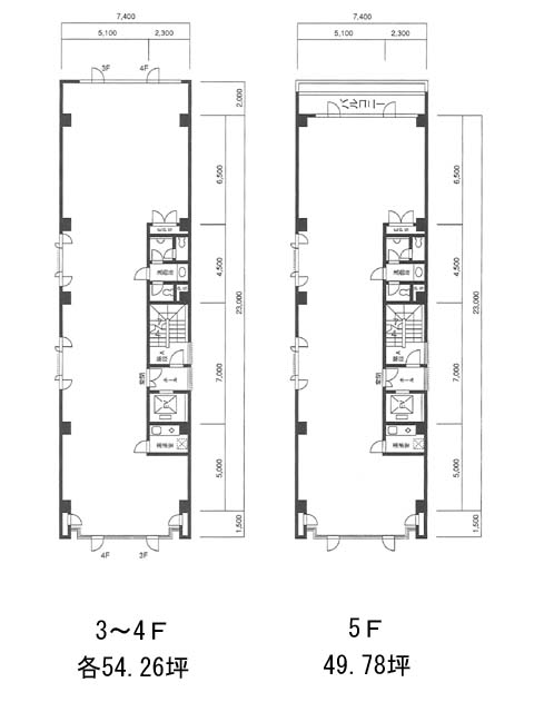
SGビル(港区芝大門)は大門駅(A6番出口)から徒歩4分の賃貸オフィスです。機械式駐車場併設のオフィスビルです。外観はグレー調でシックな印象。
1フロアはそれぞれ50坪前後の規模です。執務室は無柱空間+OAフロアによりレイアウトが組みやすいでしょう。男女別トイレと給湯室は全て室内に設置されており、それぞれ個室です。
最寄りは大門駅と芝公園駅。大門方面は飲食店が充実、芝公園方面は緑豊かな環境が魅力のエリアです。SGビルは大門駅(A6番出口)の他に芝公園駅(A3番出口)徒歩5分、浜松町駅(南口1)徒歩6分で利用も可能です。

