2階は現在募集がありません
新倉ビル 2階
物件概要
新倉ビルのテナント募集中区画
現在、空室がございません。
アクセス
新倉ビルの物件情報
新倉ビル(港区新橋)は新橋駅(A1番出口)から徒歩5分の賃貸オフィスです。新橋駅と汐留駅からそれぞれ徒歩5分、第一京浜沿いの立地で視認性に優れたビルです。エントランスやエレベーターホール回りは手入れが行き届いており、清潔感があります。
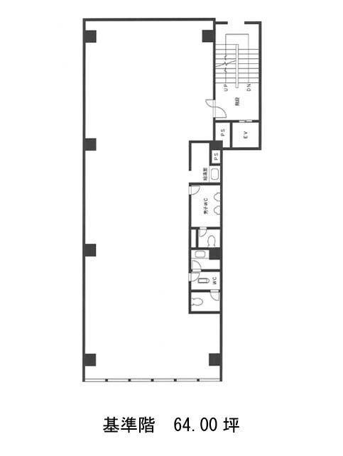
貸室は募集時期やフロアによって分割区画があるため、様々なサイズのニーズに対応可能。室内は無柱空間のため、レイアウト効率も高いでしょう。経年に関わらず全体的に綺麗なオフィスビルです。
周辺はコンビニや飲食店が点在する環境です。新倉ビルは新橋駅(A1番出口)の他に汐留駅(8番出口)徒歩5分、御成門駅(A4番出口)徒歩8分で利用も可能です。

