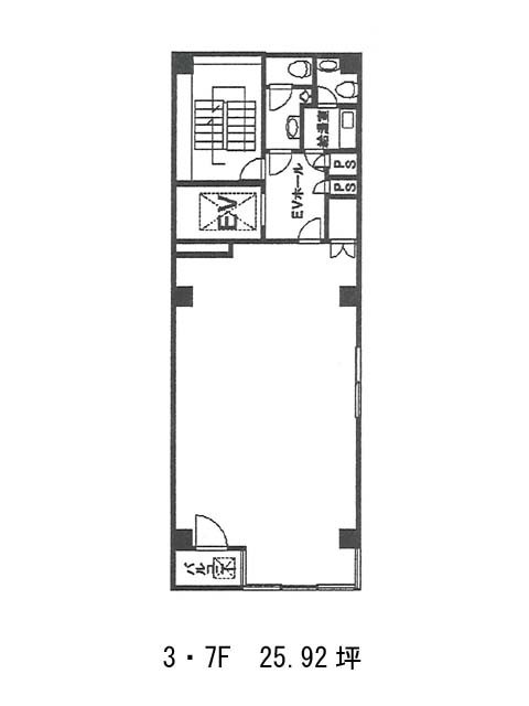
3階は現在募集がありません
露月町(ロゲツチョウ)ビル 3階
物件概要
露月町(ロゲツチョウ)ビルのテナント募集中区画
現在、空室がございません。
アクセス
露月町(ロゲツチョウ)ビルの物件情報
露月町(ロゲツチョウ)ビル(港区新橋)は新橋駅(A1番出口)から徒歩4分の賃貸オフィスです。露月町(ロゲツチョウ)ビルは新橋駅(A1番出口)の他に汐留駅(8番出口)徒歩5分、御成門駅(A4番出口)徒歩9分で利用も可能です。

