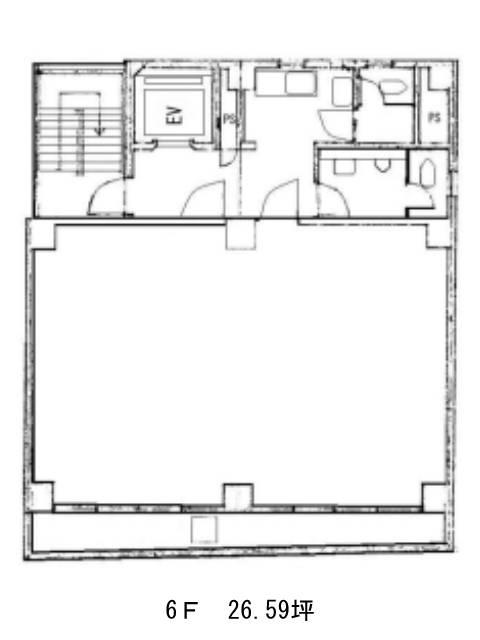
6階は現在募集がありません
新橋SSビル 6階
物件概要
新橋SSビルのテナント募集中区画
現在、空室がございません。
アクセス
新橋SSビルの物件情報
新橋SSビル(港区新橋)は御成門駅(A4番出口)から徒歩5分の賃貸オフィスです。新橋SSビルは御成門駅(A4番出口)の他に新橋駅(A1番出口)徒歩8分、汐留駅(8番出口)徒歩9分で利用も可能です。

