5階は現在募集がありません
ユーマックスビル 5階
物件概要
ユーマックスビルのテナント募集中区画
現在、空室がございません。
アクセス
ユーマックスビルの物件情報
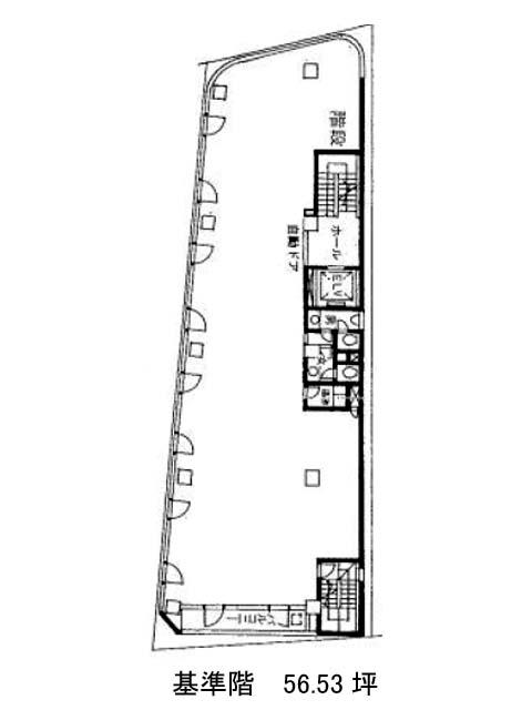
ユーマックスビル(港区新橋)は御成門駅(A4番出口)から徒歩4分の賃貸オフィスです。角地に建ち、白いカーブが特徴的なビルです。管理状態が良く築年数を感じさせない美観があります。共用部は白の大理石で明るいデザインをしており、1階には受付があります。ビルは24時間使用可能です。室内は2面採光で、ガラス窓が途切れることなく続き明るい室内が期待できるでしょう。EV・男女別トイレ・非常階段2箇所・個別空調があり、タイルカーペットになります。周辺はオフィスビル・マンション・ホテル等が混在する落ち着いた雰囲気のエリアです。ユーマックスビルは御成門駅(A4番出口)の他に大門駅(A4番出口)徒歩6分、新橋駅(A1番出口)徒歩9分で利用も可能です。

