8階は現在募集がありません

新橋住友ビル 8階

前の写真 次の写真

物件概要

物件番号

130-00004-110

物件名

新橋住友ビル

所在地

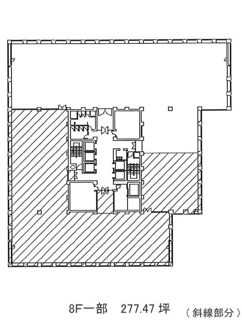
面積

277.47坪

賃料(共益費含)


入居日

募集終了

保証金

礼金

更新料

償却費

竣工

1982年4月

構造

規模

地上11階/地下2階

トイレ

男女別

空調

セントラル

エレベーター

セキュリティ

駐車場

耐震

新耐震基準

基準階天井高

2420mm

空室延床面積

最寄駅

情報更新日

2025/10/20

新橋住友ビルのテナント募集中区画

現在、空室がございません。

アクセス

新橋住友ビルの物件情報

新橋住友ビル(港区新橋)は新橋駅(A1番出口)から徒歩5分の賃貸オフィスです。
新橋エリアでも存在感のある大規模物件。重厚感のある外観と、ゆとりをもって設計されたエントランスホールが来訪者を迎え、企業としての信頼感を自然に醸し出します。
基準階は約542坪という広大なフロアを有しており、執務スペースの分割実績も200坪台からあり、柔軟な運用が可能です。フロア中央にコアがまとまっているため、採光性も高く、効率的なレイアウトが叶う構造です。もちろんOAフロアも完備されており、現代のビジネスニーズに対応した快適なワークプレイスを実現できます。
さらに、館内には有人警備が導入されており、セキュリティ面でも安心感のある体制が整っています。働く人にとっても、訪問するお客様にとっても、落ち着きと信頼性のある環境が整った物件です。
新橋住友ビルは新橋駅(A1番出口)の他に汐留駅(8番出口)徒歩6分、御成門駅(A4番出口)徒歩10分で利用も可能です。

近隣のエリア・駅から探す