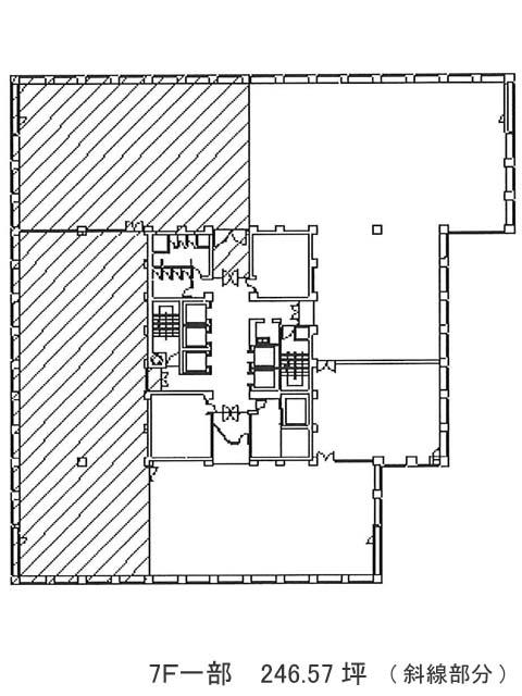
7階は現在募集がありません
新橋住友ビル 7階
物件概要
新橋住友ビルのテナント募集中区画
現在、空室がございません。
アクセス
新橋住友ビルの物件情報
新橋住友ビル(港区新橋)は新橋駅(A1番出口)から徒歩5分の賃貸オフィスです。
新橋エリアでも存在感のある大規模物件。重厚感のある外観と、ゆとりをもって設計されたエントランスホールが来訪者を迎え、企業としての信頼感を自然に醸し出します。
基準階は約542坪という広大なフロアを有しており、執務スペースの分割実績も200坪台からあり、柔軟な運用が可能です。フロア中央にコアがまとまっているため、採光性も高く、効率的なレイアウトが叶う構造です。もちろんOAフロアも完備されており、現代のビジネスニーズに対応した快適なワークプレイスを実現できます。
さらに、館内には有人警備が導入されており、セキュリティ面でも安心感のある体制が整っています。働く人にとっても、訪問するお客様にとっても、落ち着きと信頼性のある環境が整った物件です。
新橋住友ビルは新橋駅(A1番出口)の他に汐留駅(8番出口)徒歩6分、御成門駅(A4番出口)徒歩10分で利用も可能です。


