2階は現在募集がありません
プラザ新橋 2階
物件概要
プラザ新橋のテナント募集中区画
現在、空室がございません。
アクセス
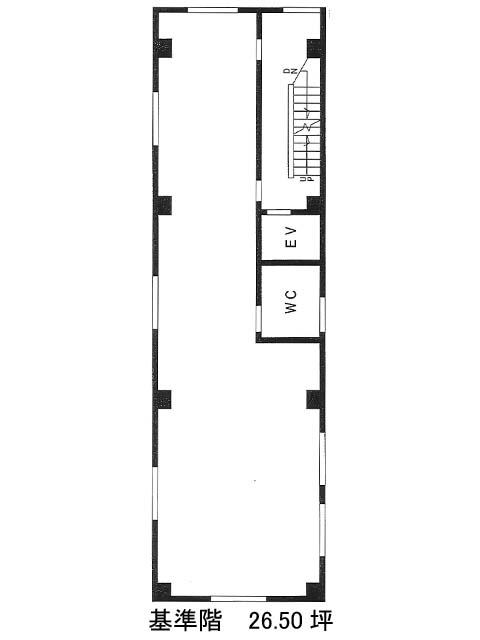
プラザ新橋の物件情報
プラザ新橋(港区新橋)は内幸町駅(A1番出口)から徒歩4分の賃貸オフィスです。プラザ新橋は内幸町駅(A1番出口)の他に新橋駅(烏森口)徒歩5分、虎ノ門ヒルズ駅(B4番出口)徒歩8分で利用も可能です。

