3階は現在募集がありません
301 SHINBASHI BUILDING 3階
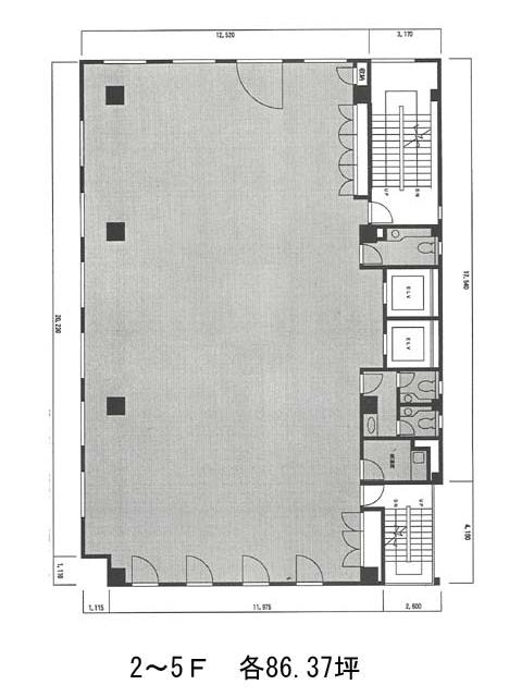
物件概要
301 SHINBASHI BUILDINGのテナント募集中区画
現在、空室がございません。
アクセス
301 SHINBASHI BUILDINGの物件情報
301 SHINBASHI BUILDING(港区新橋)は内幸町駅(A1番出口)から徒歩4分の賃貸オフィスです。竣工2005年の物件ということもあり、建物自体が比較的綺麗です。外観は全体的にブラウンを基調とした石造りで、とても重厚感のある建物です。エントランスホールやエレベーターホールはとても広々としているため、開放感と高級感があります。ビル内にはOAフロアが備えられており、トイレは男女別となっております。また周辺にはコンビニや飲食店、銀行などが複数あるためとても利便性が高いです。301 SHINBASHI BUILDINGは内幸町駅(A1番出口)の他に新橋駅(日比谷口)徒歩6分、虎ノ門ヒルズ駅(B4番出口)徒歩8分で利用も可能です。

