5階は現在募集がありません
日新建物新橋ビル 5階
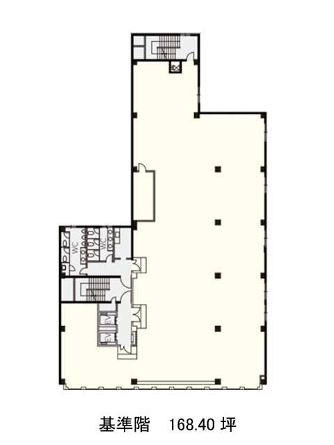
物件概要
日新建物新橋ビルのテナント募集中区画
現在、空室がございません。
アクセス
日新建物新橋ビルの物件情報
日新建物新橋ビル(港区新橋)は新橋駅(烏森口)から徒歩6分の賃貸オフィスです。外観は全体的に落ち着いた色を基調としており、窓ガラスの部分のみ黒色が使用されているため、とてもデザイン性が高いです。ビル内にはOAフロアが備えられており、トイレは男女別となっております。エントランスホールやエレベーターホールはとても落ち着いた空間となっております。周辺にはコンビニや飲食店が複数あるため、ランチも楽しめるでしょう。またビルの1階にも銀行が入っているため、活用しやすいでしょう。日新建物新橋ビルは新橋駅(烏森口)の他に内幸町駅(A1番出口)徒歩7分、汐留駅(出口2)徒歩8分で利用も可能です。

