新橋東急ビルのテナント募集中区画
| 階数 | 面積 | 賃料(共益費含む) | 保証金 | 入居可能日 | 検討リスト | 詳細 |
|---|---|---|---|---|---|---|
| 14 | 211.03坪 | 応相談(応相談) | 応相談 | 2027年8月上旬 | ||
| 15 | 211.03坪 | 応相談(応相談) | 応相談 | 2027年8月上旬 | ||
| 16 | 211.03坪 | 応相談(応相談) | 応相談 | 2027年8月上旬 |
…新着物件
アクセス
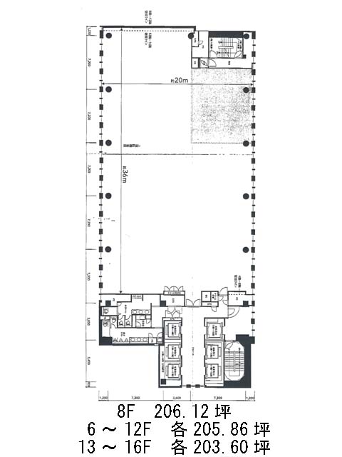
新橋東急ビルの物件情報
新橋東急ビル(港区新橋)は新橋駅(A1番出口)から徒歩2分の賃貸オフィスです。地上16階建てで竣工2008年の物件ということもあり、上層階からの眺望はとても良好で建物自体も比較的綺麗です。外観は全体的にグレーを基調とした色合いで、ガラスのカーテンウォールが特徴的になっており、建物自体もとても大きいため圧倒的存在感があります。ビル内にはOAフロアが備えられており、トイレは男女別となっております。セキュリティは機械警備を導入しており、耐震性も新耐震基準であるため、安心です。また周辺にはコンビニや飲食店などが複数あるため、ランチも楽しめるでしょう。新橋東急ビルは新橋駅(A1番出口)の他に汐留駅(出口2)徒歩5分、内幸町駅(A2番出口)徒歩9分で利用も可能です。

