9階は現在募集がありません
3フロア募集区画あり

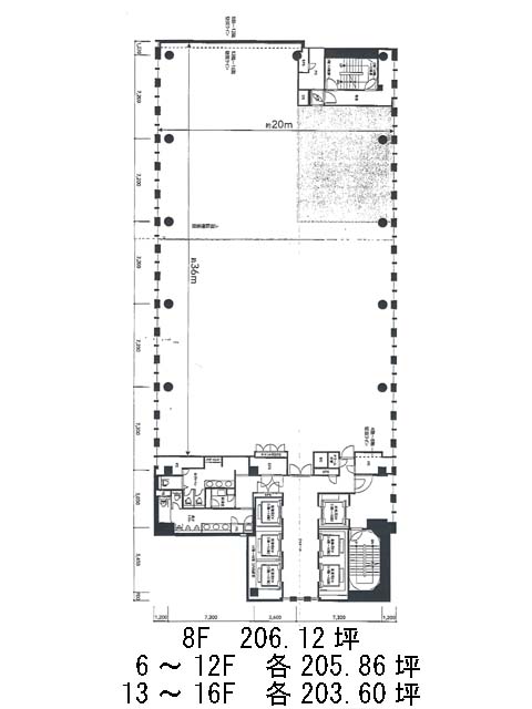
新橋東急ビル 9階

前の写真 次の写真

物件概要

物件番号

130-00580-90

物件名

新橋東急ビル

所在地

面積

205.86坪

賃料(共益費含)


入居日

募集終了

保証金

礼金

更新料

償却費

竣工

2008年4月

構造

規模

地上16階/地下1階

トイレ

男女別

空調

個別空調

エレベーター

セキュリティ

駐車場

耐震

新耐震基準

基準階天井高

3500mm

空室延床面積

633.09坪

最寄駅

情報更新日

2026/01/09

新橋東急ビルのテナント募集中区画

階数 面積 賃料(共益費含む) 保証金 入居可能日 検討リスト 詳細
14 211.03坪 応相談(応相談) 応相談 2027年8月上旬
15 211.03坪 応相談(応相談) 応相談 2027年8月上旬
16 211.03坪 応相談(応相談) 応相談 2027年8月上旬
…新着物件

アクセス

新橋東急ビルの物件情報

新橋東急ビル(港区新橋)は新橋駅(A1番出口)から徒歩2分の賃貸オフィスです。
地上16階建てで竣工2008年の物件ということもあり、上層階からの眺望はとても良好で建物自体も比較的綺麗です。外観は全体的にグレーを基調とした色合いで、ガラスのカーテンウォールが特徴的になっており、建物自体もとても大きいため圧倒的存在感があります。ビル内にはOAフロアが備えられており、トイレは男女別となっております。セキュリティは機械警備を導入しており、耐震性も新耐震基準であるため、安心です。また周辺にはコンビニや飲食店などが複数あるため、ランチも楽しめるでしょう。
新橋東急ビルは新橋駅(A1番出口)の他に汐留駅(出口2)徒歩5分、内幸町駅(A2番出口)徒歩9分で利用も可能です。

近隣のエリア・駅から探す