7階は現在募集がありません
カシケイビル 7階
物件概要
カシケイビルのテナント募集中区画
現在、空室がございません。
アクセス
カシケイビルの物件情報
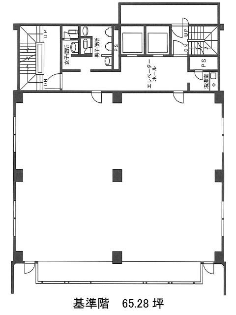
カシケイビル(港区新橋)は新橋駅(2番出口)から徒歩1分の賃貸オフィスです。基準階は約65坪の整形フロアで、柱も少なく、レイアウトの自由度が高い点が特徴。空間を有効に活用しながら、執務エリア・会議室・リフレッシュスペースなど、柔軟にゾーニングできます。
エレベーターは2基設置されており、朝夕の出退勤時間帯にもスムーズな移動が可能。機械警備によるセキュリティ体制も整っており、安心して業務に集中できる環境です。
新橋駅周辺は複数路線が交差する交通利便性の高さに加え、飲食・金融・商業施設が豊富に揃うエリア。ランチや打ち合わせ、取引先訪問などもスムーズで、ビジネスの拠点として申し分ない立地です。カシケイビルは新橋駅(2番出口)の他に汐留駅(3番出口)徒歩4分、内幸町駅(A2番出口)徒歩6分で利用も可能です。

