京阪神御成門ビルのテナント募集中区画
| 階数 | 面積 | 賃料(共益費含む) | 保証金 | 入居可能日 | 検討リスト | 詳細 |
|---|---|---|---|---|---|---|
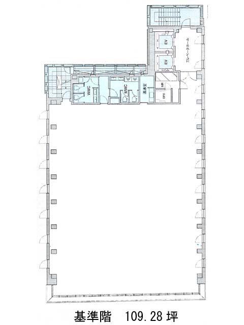
| 3 | 109.28坪 | 3,486,032円/月(31,900円/坪) | 3,278万円 | 即 |
…新着物件
アクセス
京阪神御成門ビルの物件情報
京阪神御成門ビル(港区新橋)は御成門駅(A4番出口)から徒歩3分の賃貸オフィスです。竣工2009年の物件ということもあり、建物自体が比較的綺麗です。外観は全体的にグレーを基調とした色合いで、前面ガラス張りになっているため、とてもスタイリッシュな印象があります。エントランスホールやエレベーターホールはとても清潔感があり、落ち着いた空間となっております。ビル内にはOAフロアが備えられており、トイレは男女別となっております。また周辺にはコンビニや飲食店、郵便局などがあるためとても利便性が高いです。京阪神御成門ビルは御成門駅(A4番出口)の他に内幸町駅(A1番出口)徒歩10分、大門駅(A6番出口)徒歩10分で利用も可能です。

