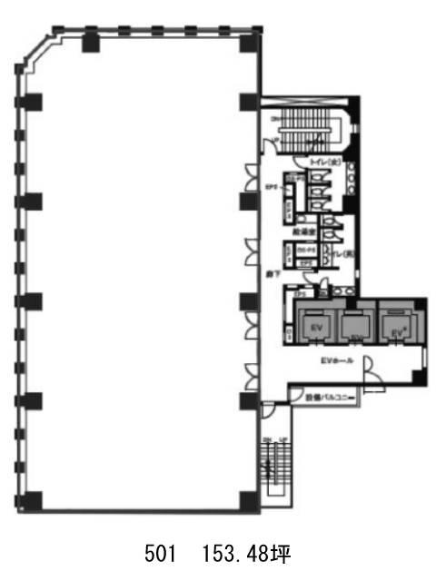
5階 501は現在募集がありません
新橋M-SQUARE 5階 501
物件概要
新橋M-SQUAREのテナント募集中区画
現在、空室がございません。
アクセス
新橋M-SQUAREの物件情報
新橋M-SQUARE(港区新橋)は新橋駅(1番出口)から徒歩1分の賃貸オフィスです。竣工2011年、地上11階建ての物件ということもあり、上層階からの眺望は良好です。外観は、建物自体がとても大きいため存在感があります。エントランスホールやエレベーターホールは広々としており、開放感と清潔感があります。また周辺には、コンビニや飲食店などがあるため、ランチも楽しめるでしょう。ビル内にはOAフロアが備えられており、トイレは男女別となっております。駐車場があるため、社用車を使う場合も便利です。新橋M-SQUAREは新橋駅(1番出口)の他に汐留駅(3番出口)徒歩5分、内幸町駅(A2番出口)徒歩6分で利用も可能です。

