1階は現在募集がありません
JBAビル 1階
物件概要
JBAビルのテナント募集中区画
現在、空室がございません。
アクセス
JBAビルの物件情報
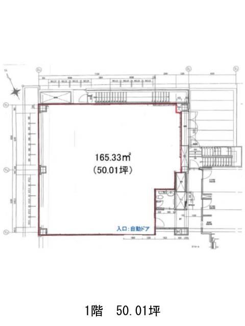
JBAビル(港区新橋)は御成門駅(A4番出口)から徒歩6分の賃貸オフィスです。本物件は、新橋エリアに位置しながらも、比較的静かなビジネス街に立地。角地ならではの視認性と開放感があり、来訪者にもわかりやすいロケーションです。外観はベージュとブラックのタイルが織りなす重厚感ある佇まいで、企業の信頼感を高める印象を与えます。1階は約50坪の整形フロア。使い勝手の良いレイアウトと、周辺の飲食・利便施設とのバランスも魅力です。落ち着いた環境で腰を据えて業務に取り組みたい企業におすすめの物件です。JBAビルは御成門駅(A4番出口)の他に内幸町駅(A1番出口)徒歩8分、新橋駅(A1番出口)徒歩8分で利用も可能です。

