6階は現在募集がありません
サンパウロビル 6階
物件概要
サンパウロビルのテナント募集中区画
現在、空室がございません。
アクセス
サンパウロビルの物件情報
サンパウロビル(港区新橋)は内幸町駅(A1番出口)から徒歩3分の賃貸オフィスです。ベージュ~ライトブラウン調の清潔感漂う外観と開放感のある角地の立地で好印象のオフィスビルです。
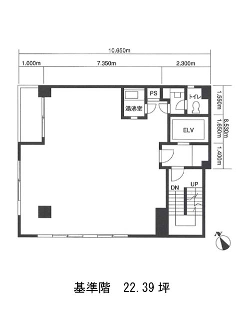
基準フロアは20坪強のコンパクトなオフィス空間ですが、エレベーターホールが設けられており、室内のプライバシーが保たれています。給湯室とトイレの水回りも室内に確保されているため、各階干渉せずに使用することが出来ます。
内幸町駅と新橋駅がほど近く、付近一帯は飲食店に恵まれた環境です。サンパウロビルは内幸町駅(A1番出口)の他に新橋駅(日比谷口)徒歩5分、虎ノ門ヒルズ駅(B4番出口)徒歩8分で利用も可能です。

