2階は現在募集がありません
鈴丸ビル 2階
物件概要
鈴丸ビルのテナント募集中区画
現在、空室がございません。
アクセス
鈴丸ビルの物件情報
鈴丸ビル(港区西新橋)は内幸町駅(A3番出口)から徒歩6分の賃貸オフィスです。角地に立地しており、開放感・視認性共に良好。パネルとレンガ調が組み合わされた外観はレトロで趣があります。
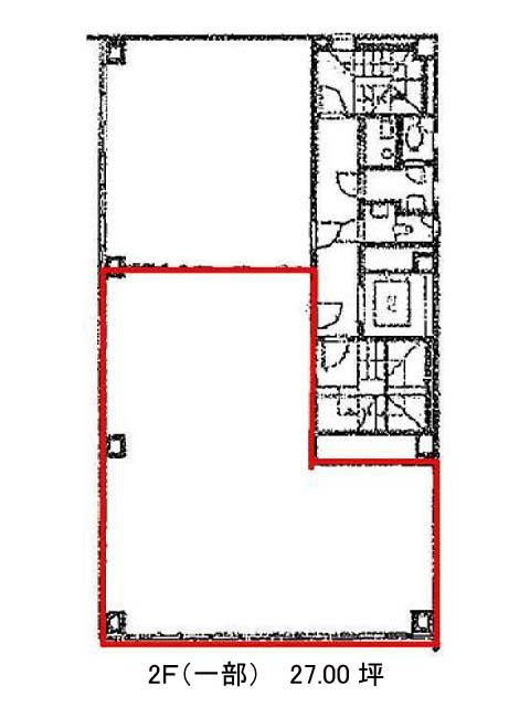
基準の貸室は40坪。執務空間はL字型の無柱空間でオフィスレイアウトを行いやすいでしょう。給湯室と男女別トイレは室外に設けられています。セキュリティは機械警備を導入済み。
物件は日比谷通りと環二通りにほど近く、近隣には郵便局、コンビニ、カフェなどがあります。鈴丸ビルは内幸町駅(A3番出口)の他に御成門駅(A5番出口)徒歩7分、虎ノ門ヒルズ駅(B2番出口)徒歩8分で利用も可能です。

