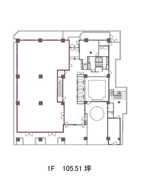
1階は現在募集がありません
ランディック新橋ビル 1階
物件概要
ランディック新橋ビルのテナント募集中区画
現在、空室がございません。
アクセス
ランディック新橋ビルの物件情報
ランディック新橋ビル(港区西新橋)は御成門駅(A5番出口)から徒歩6分の賃貸オフィスです。日比谷通り沿い角地に佇む地上9階建てのオフィスビル。周辺は比較的大型の物件が多く見られますが、そのような環境でも存在感の強い物件です。ベージュワントーンの外観はとても上品な印象。エントランス~エレベーターホールも明るいベージュや白を基調とした内装で、手入れが行き届いていることもあり清潔感に溢れています。
基準となるフロアは約200坪の規模ですが、フロアや募集時期によって分割区画がございます。主な設備は個別空調・OAフロア・機械警備・エレベーター3基・男女別トイレです。
最寄りの御成門駅から当物件は若干の距離がありますが、日比谷通りを直進するシンプルな道順です。また、近隣に郵便局やコンビニ、銀行が立地しています。ランディック新橋ビルは御成門駅(A5番出口)の他に内幸町駅(A3番出口)徒歩6分、虎ノ門ヒルズ駅(B2番出口)徒歩8分で利用も可能です。

